物件情報
| 物件No. | 44 |
| 施設名 | Rise(ライズ) 2 |
| 制限 | 女 |
| 管理者 | 上村 隆志 |
| 登録部屋数 | 3 |
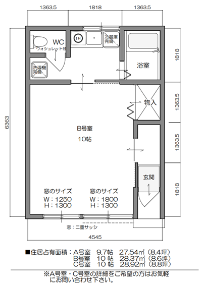
| 帖数・専有面積 | A号室 9.7帖・27.54㎡ B号室 10帖・28.37㎡ C号室 10帖・28.92㎡ |
| 室料(1ヶ月) | 38,000円 |
| 共益費 | 4,000円 |
| 上下水道料 | 4,385円(固定額) |
| 礼金 | 1ヶ月分 |
| 敷金 | 1ヶ月分 |
| 事務手数料 | 0.5ヶ月分 |
| 設備/部屋の状況 | エアコン,防犯ベル,IH調理器,洗濯機,冷蔵庫,ウォシュレット,二重窓,BS対応, 室内物干しユニット, 室内24時間換気機能,TVドアホン |
| その他 | H20築 青空駐車場月1,000円(7台可)但し、No,43Rise1と共用 |
| 防犯カメラ | 有 |
北里アパート組合への
お問い合わせ
Inquiry
アパート・下宿の受入れ(契約)に関わる業務を北里アパート組合事務局にて行っております。ご質問やわからないことがありましたら、お気軽にご連絡ください。
お電話のお問い合わせ
025-780-1125
グループリンクメールのお問い合わせ







